Verkocht:Begoniastraat 82, 9713 NE Groningen - Foto
Verkocht
+47

Begoniastraat 82 9713 NE Groningen

  • Woonhuis
  • 3 kamers
  • 2 slaapkamers
  • 1 badkamers
  • Bouwjaar 1928
  • 60 m² gebruiksoppervlakte
  • C Energielabel C

Beschrijving

Wonen in een rustige straat vol karakter, op loopafstand van de binnenstad én met het park om de hoek? Deze woning aan de Begoniastraat 82 in de Bloemenbuurt heeft het allemaal. Deze charmante jaren ’20 woning is gebouwd in de stijl van de Amsterdamse School en combineert de sfeer van toen met het comfort van nu. Ideaal voor starters die zoeken naar een knus, instapklaar huis met een heerlijke tuin.

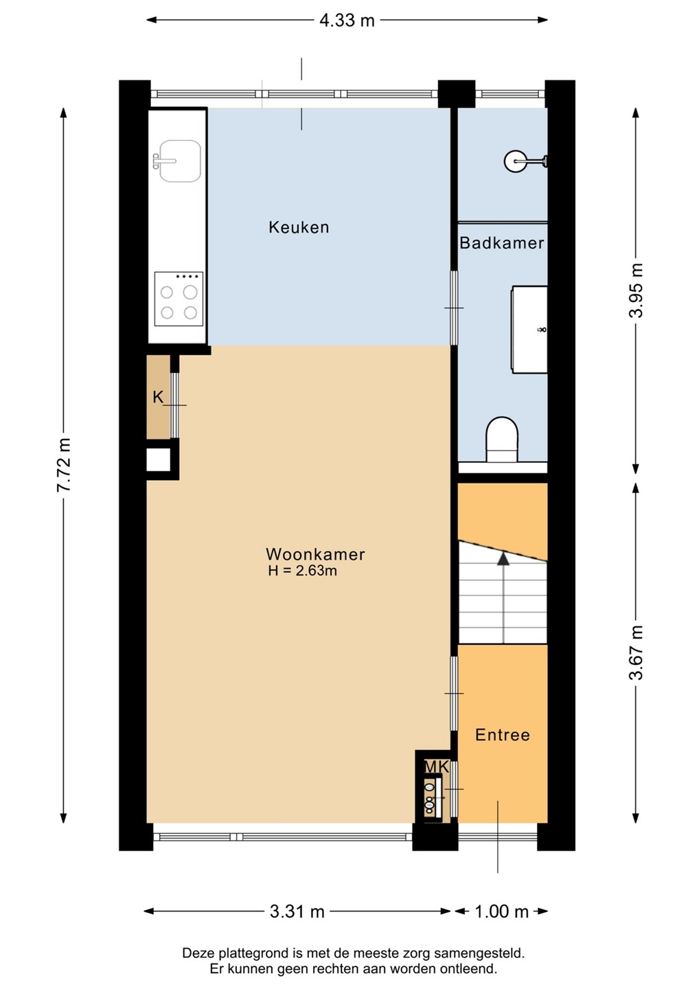
De begane grond is praktisch ingedeeld, met een gezellige woonkamer met eikenhouten parket en een moderne open keuken die voorzien is van een inductie kookplaat, wasemkap, oven, grote koelkast en vriezer en een vaatwasser. De badkamer is in 2024 vernieuwd en uitgevoerd met een inloopdouche, modern wastafelmeubel, toilet en designradiator.

Dankzij de lage bebouwing is de achtertuin de hele dag zonnig. Je geniet hier van een ruim terras, groene borders en klimop. De stenen (fietsen)berging is vanuit de tuin en ook via de achterom bereikbaar. De voortuin met haag ligt op het zuiden en is voorzien van een handige fietsbeugel voor het veilig stallen van je fiets.

Op de eerste verdieping bevinden zich twee slaapkamers: een royale slaapkamer van ca. 15 m² aan de voorzijde met wastafel en een tweede slaapkamer van ca. 5 m² met dakraam aan de achterzijde. De kurk laminaatvloer geeft het geheel een warme uitstraling. Op de overloop bevinden zich de cv-opstelling en de wasmachineaansluiting. Via een vlizotrap bereik je de ruime vliering voor extra bergruimte.

De Bloemenbuurt is een geliefde, rustige buurt in de Oosterparkwijk van Groningen. Je woont er gemoedelijk en toch met alle stadse voorzieningen binnen handbereik: supermarkten, gezellige horeca, OV-verbindingen en het UMCG zijn op loop- of fietsafstand. Binnen 5 minuten sta je op de Grote Markt. De wijk staat bekend om haar leuke mix van bewoners, gezinnen en betrokken buren. Kortom, een plek waar je je snel thuis voelt.

Zie jij jezelf hier wonen? Plan dan snel een bezichtiging in met STEK Jouw makelaar!
We laten je deze fijne woning met plezier zien!

BELANGRIJKSTE KENMERKEN OP EEN RIJ

• Karaktervolle tussenwoning (1928) in rustige straat
• Gebouwd in Amsterdamse Schoolstijl (beschermd stadsgezicht)
• Moderne open keuken (2019)
• Badkamer vernieuwd in 2024
• Twee slaapkamers en ruime bergvliering
• Zonnige achtertuin met berging en afgesloten achterom
• Energielabel C
• Centrale ligging in de Bloemenbuurt, nabij centrum en UMCG
• Ideaal voor starters of alleenstaanden die rustig maar stedelijk willen wonen
• Geen bevingsschade geclaimd, nog mogelijk voor koper
• De woning (appartementsrecht) is onderdeel van een verzorgd complex met meerdere woningen en een actieve VvE. De maandelijkse bijdrage bedraagt € 107,58

Kaart

Kenmerken

Overdracht

Referentienummer
VK75
Vraagprijs
€ 269.000,- k.k.
Servicekosten
€ 107,58
Elektra
€ 67,-
Gas
€ 97,-
Status
Verkocht
Aanvaarding
In overleg
Aangeboden sinds
Donderdag 25 september 2025
Laatste wijziging
Maandag 8 december 2025

Bouw

Type object
Woonhuis, eengezinswoning, tussenwoning
Soort bouw
Bestaande bouw
Bouwperiode
1928
Dakbedekking
Dakpannen
Type dak
Zadeldak
Keurmerken
Energie prestatie advies
Isolatievormen
Dubbel glas
HR-glas
Vloerisolatie

Oppervlaktes en inhoud

Woonoppervlakte
60 m²
Inhoud
235 m³
Oppervlakte overige inpandige ruimten
5 m²
Oppervlakte externe bergruimte
4 m²

Indeling

Aantal bouwlagen
3
Aantal kamers
3 (waarvan 2 slaapkamers)
Aantal badkamers
1

Locatie

Ligging
Dichtbij openbaar vervoer
In woonwijk
Nabij school

Tuin

Type
Achtertuin
Hoofdtuin
Ja
Oriëntering
Noord west
Heeft een achterom
Ja
Staat
Normaal
Tuin 2 - Type
Voortuin
Tuin 2 - Oriëntering
Zuidoost
Tuin 2 - Staat
Normaal

Energieverbruik

Energielabel
C

CV ketel

CV ketel
Nefit Proline hcr cw3
Warmtebron
Gas
Bouwjaar
2012
Combiketel
Ja
Eigendom
Eigendom

Uitrusting

Warm water
CV-ketel
Verwarmingssysteem
Centrale verwarming
Elektrische verwarming
Ventilatie methode
Mechanische ventilatie
Badkamervoorzieningen
Inloopdouche
Toilet
Wastafel
Wastafelmeubel
Tuin aanwezig
Ja
Beschikt over een internetverbinding
Ja
Heeft schuur/berging
Ja
Heeft een dakraam
Ja
Heeft ventilatie
Ja

Kadastrale gegevens

Kadastrale aanduiding
Groningen A 12980
Omvang
Appartementsrecht of complex
Eigendomsituatie
Eigen grond
Indexnummer
A39

Brochure(s) en overige bijlagen

AV Brochure - Begoniastraat 82 - Groningen.pdf Download