Verkocht:De Waard 233, 9734 CZ Groningen - Foto
Verkocht
+64

De Waard 233 9734 CZ Groningen

  • Woonhuis
  • 6 kamers
  • 5 slaapkamers
  • 1 badkamers
  • Bouwjaar 1998
  • 140 m² perceeloppervlakte
  • 135 m² gebruiksoppervlakte
  • A+ Energielabel A+

Beschrijving

De Waard 233 - ruime dijkwoning met 5 slaapkamers aan het water in Ruischerwaard.
Aan de rand van de populaire en kindvriendelijke wijk Ruischerwaard staat deze goed onderhouden met leisteen afgewerkte dijkwoning met vijf slaapkamers, meerdere terrassen aan het water en een eigen oprit met berging. De woning beschikt over een woonoppervlakte van 135 m², is volledig geïsoleerd, voorzien van kunststof kozijnen en beschikt over energielabel A+. Ideaal voor gezinnen die op zoek zijn naar een moderne, energiezuinige woning op een unieke locatie.

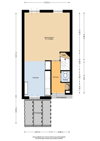
Indeling
De auto kan op straatniveau op de eigen parkeerplek geparkeerd worden. Hier is ook in de dijk een fietsenberging geplaatst van 8 m². Via een trap bereik je de voortuin waar je heerlijk van de zon kunt genieten en waar je ook de beschutting van de overkapping op kunt zoeken.
De hal met meterkast en toilet, geeft toegang tot de lichte woonkamer met grote raampartijen, airconditioning en fraai uitzicht op het Damsterdiep.
De open keuken is geplaatst in 2020 en is praktisch ingericht met een extra diep werkblad, inductie kookplaat met wasemkap, vaatwasser en oven. Via de openslaande deuren kom je in de voortuin.
Aan de achterzijde geven openslaande deuren toegang tot twee ruime vlonder terrassen. Het ene terras ligt op gelijk niveau als de woonkamer en met een trap is het tweede terras bereikbaar waar je heerlijk aan de waterkant op de aanlegsteiger kan zitten.

Op de eerste verdieping bevinden zich drie slaapkamers (ca. 15, 9 en 9 m²) waarvan de grootste slaapkamer een Frans balkon heeft. De ruime badkamer is voorzien van ligbad, douchecabine en wastafel. Daarnaast is er een separaat tweede toilet.
De tweede verdieping biedt nog twee volwaardige slaapkamers (ca. 12 en 13 m²), beide voorzien van airconditioning. Hier bevinden zich tevens een grote wasruimte en een bergkast met cv-opstelling. De vliering is bereikbaar via een vlizotrap en geeft over de gehele diepte van de woning erg veel bergruimte.

Duurzaam en onderhoudsarm
De woning is instapklaar mede dankzij kunststof kozijnen, 15 zonnepanelen, HR++ beglazing en volledige isolatie. Airconditioning in woonkamer en drie slaapkamers maakt het comfort compleet. Energielabel A+ staat garant voor lage energiekosten.

Omgeving
Ruischerwaard is een rustige kindvriendelijke woonwijk aan de oostzijde van Groningen, ingeklemd tussen het Damsterdiep en het Eemskanaal. In de directe omgeving bevinden zich diverse speeltuinen en wandelroutes. Natuur- en sportliefhebbers kunnen genieten van recreatiegebied Kardinge met zwem- en sportmogelijkheden. De binnenstad van Groningen is bereikbaar in circa 15 minuten fietsen. Daarnaast is de ringweg snel aan te rijden.

Geïnteresseerd in deze comfortabele gezinswoning met unieke stek aan het water? Neem contact op met STEK Jouw makelaar! voor een bezichtiging.

BELANGRIJKSTE KENMERKEN OP EEN RIJ:
• Woonoppervlakte: ca. 135 m²
• Perceel: 140 m²
• Vijf volwaardige slaapkamers
• Eigen oprit met berging in de dijk
• Energielabel A+
• Volledig geïsoleerd en voorzien van HR++ beglazing
• Voorzien van 15 zonnepanelen (2022)
• Kunststof kozijnen (2019)
• Airconditioning in woonkamer en drie slaapkamers
• Voortuin op het zuiden
• Twee ruime terrassen aan vaarwater met aanlegsteiger

Kaart

Kenmerken

Overdracht

Referentienummer
VK62
Vraagprijs
€ 465.000,- k.k.
Inrichting
Niet gestoffeerd
Inrichting
Niet gemeubileerd
Status
Verkocht
Aanvaarding
In overleg
Aangeboden sinds
Dinsdag 24 juni 2025
Laatste wijziging
Vrijdag 11 juli 2025

Bouw

Type object
Woonhuis, eengezinswoning, tussenwoning, dijkwoning
Soort bouw
Bestaande bouw
Bouwperiode
1998
Dakbedekking
Leisteen
Type dak
Samengesteld
Keurmerken
Energie prestatie advies
Isolatievormen
Dakisolatie
Dubbel glas
HR-glas
Muurisolatie
Spouwmuren
Vloerisolatie
Volledig geïsoleerd

Oppervlaktes en inhoud

Perceeloppervlakte
140 m²
Woonoppervlakte
135 m²
Inhoud
481 m³
Oppervlakte overige inpandige ruimten
9 m²
Oppervlakte externe bergruimte
8 m²
Oppervlakte gebouwgebonden buitenruimte
10 m²

Indeling

Aantal bouwlagen
4
Aantal kamers
6 (waarvan 5 slaapkamers)
Aantal badkamers
1 (en 2 aparte toiletten)

Locatie

Ligging
Aan vaarwater
Dichtbij openbaar vervoer
In woonwijk
Nabij school
Vrij uitzicht

Tuin

Type
Voortuin
Hoofdtuin
Ja
Oriëntering
Zuiden
Staat
Normaal
Tuin 2 - Type
Zonneterras
Tuin 2 - Hoofdtuin
Ja
Tuin 2 - Oriëntering
Noorden
Tuin 2 - Staat
Normaal

Energieverbruik

Energielabel
A+

CV ketel

CV ketel
Intergas Kombi Kompakt HRE 36/30
Warmtebron
Gas
Bouwjaar
2013
Combiketel
Ja
Eigendom
Eigendom

Uitrusting

Aantal parkeerplaatsen
1
Warm water
CV-ketel
Verwarmingssysteem
Airconditioning
Centrale verwarming
Ventilatie methode
Mechanische ventilatie
Keukenvoorzieningen
Inbouwapparatuur
Badkamervoorzieningen
Douche
Ligbad
Wastafel
Heeft airco
Ja
Heeft een frans balkon
Ja
Tuin aanwezig
Ja
Beschikt over een internetverbinding
Ja
Heeft schuur/berging
Ja
Heeft zonnepanelen
Ja
Heeft ventilatie
Ja

Kadastrale gegevens

Kadastrale aanduiding
Noorddijk B 2284
Perceeloppervlakte
140 m²
Omvang
Geheel perceel
Eigendomsituatie
Eigen grond

Brochure(s) en overige bijlagen

De Waard 233, 9734 CZ GRONINGEN (1) Download