Nieuw in verkoop:Pijlkruid 19, 9613 BJ Meerstad - Foto
Nieuw in verkoop
+68

Pijlkruid 19 9613 BJ Meerstad € 515.000,- k.k.

  • Woonhuis
  • 5 kamers
  • 4 slaapkamers
  • 1 badkamers
  • Bouwjaar 2023
  • 125 m² perceeloppervlakte
  • 123 m² gebruiksoppervlakte
  • A++ Energielabel A++

Beschrijving

Aan Pijlkruid 19 woon je in een jonge, waterrijke woonomgeving waar ruimte, comfort en buitenleven perfect samenkomen. Deze moderne woning uit 2023 ligt in de populaire wijk Meeroevers in Meerstad en biedt alles wat je zoekt: veel leefruimte, vier slaapkamers, een fijne tuin en volop speel- en wandelmogelijkheden direct om de hoek. Hier woon je nieuw, duurzaam en zorgeloos, in een buurt waar kinderen heerlijk buiten kunnen spelen en je zelf elke dag geniet van rust en natuur.

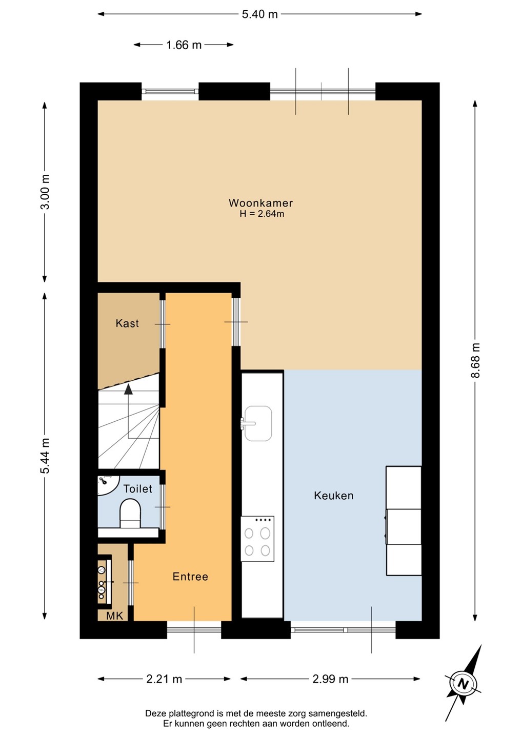
Binnen voelt het huis direct modern en warm tegelijk aan. De gehele begane grond is voorzien van een stijlvolle gietvloer met comfortabele vloerverwarming. In de hal vind je het moderne hangtoilet met fontein, waarna je doorloopt naar de gezellige woonkamer met knusse zithoek en veel licht. De open keuken vormt het hart van het huis en is ruim opgezet met complete inbouwapparatuur, waaronder een BORA inductiekookplaat met geïntegreerde afzuiging in het Dekton aanrechtblad, dubbele oven, koel-vriescombinatie, vaatwasmachine en een Quooker. Een heerlijke plek om samen te koken en te genieten.

Uniek is de toegang vanuit de keuken tot het terras in de voortuin. Gelegen aan een groen en open pleintje waar buurtbewoners elkaar ontmoeten, kinderen veilig spelen en je makkelijk even buiten zit. Het voelt als een verlengstuk van je leefruimte en geeft deze woning net dat extra stukje gezelligheid.

Via de woonkamer stap je via de openslaande deuren de achtertuin in. Deze is netjes aangelegd en biedt veel privacy en volop ruimte om te ontspannen, te spelen of te barbecueën. Ook vind je hier een berging en een handige achterom. Parkeerplaatsen liggen achter de woning.

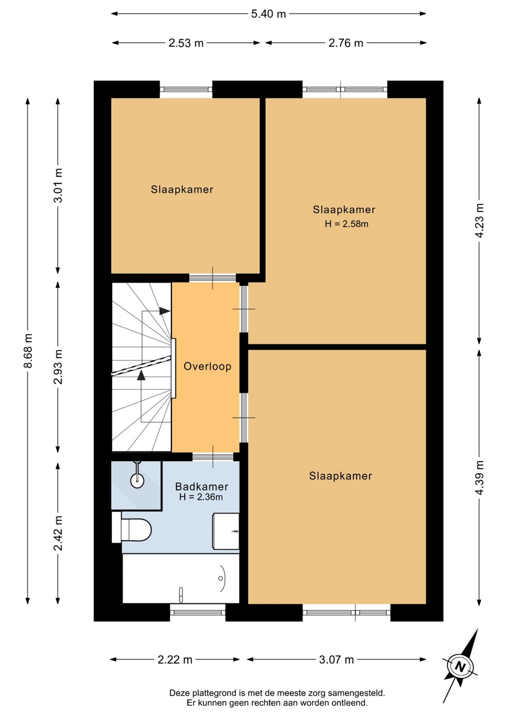
Op de eerste verdieping bevinden zich drie slaapkamers van resp. ca. 13,5, 12 en 8 m² en een moderne, sfeervolle badkamer met inloopdouche, ligbad, toilet, waskom en wastafelmeubel. De tweede verdieping bereik je via een vaste trap en biedt de mogelijkheid voor een ruime vierde slaapkamer van ca. 22 m², ideaal als tienerkamer, werkruimte of logeerkamer. Daarnaast is er een praktische berging met aansluitingen voor de wasmachine, droger en waterontharder. Hier is ook de ventilatieluchtwarmtepomp met WTW-systeem geplaatst. Er is een vliering aanwezig voor extra bergruimte.

Ook op het gebied van duurzaamheid zit je hier helemaal goed. De woning beschikt over energielabel A++, is volledig geïsoleerd en heeft maar liefst 15 zonnepanelen. In combinatie met vloerverwarming en moderne installaties woon je hier comfortabel én energiezuinig.

De ligging in Meeroevers maakt het wonen extra fijn. Meerstad staat bekend om haar groene karakter, waterpartijen, speelvoorzieningen en wandelroutes. Kinderen spelen hier veilig buiten, terwijl jij geniet van het uitzicht en de rust. Tegelijkertijd ben je binnen korte tijd in Groningen, met winkels, scholen en voorzieningen dichtbij. Een ideale combinatie van natuur en stad.

Benieuwd hoe het voelt om hier te wonen? Plan gerust een bezichtiging bij STEK Jouw makelaar! en we laten je deze moderne gezinswoning graag in het echt ervaren.

BELANGRIJKSTE KENMERKEN OP EEN RIJ
• Moderne woning uit 2023
• Woonoppervlakte ca. 123 m²
• Energielabel A++, volledig geïsoleerd
• 15 Zonnepanelen
• Capaciteit van boiler: 300 liter
• Bekabeld internet in elke kamer
• Drie slaapkamers met mogelijkheid tot vierde slaapkamer van ca 22m²
• Stijlvolle gietvloer met vloerverwarming op de begane grond
• Luxe open keuken met o.a. geïntegreerde afzuiging, dubbele oven en Quooker
• Moderne badkamer met ligbad en inloopdouche
• Aangelegde achtertuin met berging en achterom
• Gezellig pleintje grenzend aan het terras aan de voorkant
• Waterrijke, groene woonomgeving met veel speel-, zwem- en wandelmogelijkheden

Kaart

Kenmerken

Overdracht

Referentienummer
VK81
Vraagprijs
€ 515.000,- k.k.
Status
Nieuw in verkoop
Aanvaarding
In overleg
Aangeboden sinds
Vrijdag 30 januari 2026
Laatste wijziging
Woensdag 11 februari 2026

Bouw

Type object
Woonhuis, eengezinswoning, tussenwoning
Soort bouw
Bestaande bouw
Bouwperiode
2023
Dakbedekking
Dakpannen
Type dak
Zadeldak
Keurmerken
Energie prestatie advies
Isolatievormen
Dakisolatie
HR-glas
Muurisolatie
Vloerisolatie
Volledig geïsoleerd

Oppervlaktes en inhoud

Perceeloppervlakte
125 m²
Woonoppervlakte
123 m²
Inhoud
442 m³
Oppervlakte externe bergruimte
5 m²

Indeling

Aantal bouwlagen
3
Aantal kamers
5 (waarvan 4 slaapkamers)
Aantal badkamers
1 (en 1 apart toilet)

Locatie

Ligging
In woonwijk

Tuin

Type
Achtertuin
Hoofdtuin
Ja
Oriëntering
Noord west
Heeft een achterom
Ja
Staat
Goed onderhouden
Tuin 2 - Type
Voortuin
Tuin 2 - Oriëntering
Zuidoost
Tuin 2 - Staat
Normaal

Energieverbruik

Energielabel
A++

Uitrusting

Warm water
Elektrische boiler
Verwarmingssysteem
Vloerverwarming (gedeeltelijk)
Warmtepomp
Warmterecuperatiesysteem
Ventilatie methode
Mechanische ventilatie
Keukenvoorzieningen
Inbouwapparatuur
Badkamervoorzieningen
Douche
Inloopdouche
Ligbad
Toilet
Wastafel
Wastafelmeubel
Glasvezelaansluiting aanwezig
Ja
Tuin aanwezig
Ja
Heeft schuur/berging
Ja
Heeft een dakraam
Ja
Heeft zonwering
Ja
Heeft zonnepanelen
Ja
Heeft ventilatie
Ja

Kadastrale gegevens

Kadastrale aanduiding
Groningen AE 2417
Perceeloppervlakte
125 m²
Omvang
Geheel perceel
Eigendomsituatie
Eigen grond

Brochure(s) en overige bijlagen

Brochure AV - Pijlkruid 19 - Meerstad.pdf Download