Verkocht:Vossenburglaan 220, 9613 CG Meerstad - Foto
Verkocht
+57

Vossenburglaan 220 9613 CG Meerstad

  • Woonhuis
  • 6 kamers
  • 5 slaapkamers
  • 1 badkamers
  • Bouwjaar 2020
  • 258 m² perceeloppervlakte
  • 160 m² gebruiksoppervlakte
  • A++++ Energielabel A++++

Beschrijving

Dit huis heeft het allemaal: ruimte, comfort, duurzaamheid én een mooie ligging!
Vossenburglaan 220 is een moderne, volledig gasloze hoekwoning met maar liefst vijf slaapkamers, een royale uitgebouwde leefruimte en een fraai aangelegde tuin rondom. Gelegen in het geliefde Tersluis – op loopafstand van school, supermarkt, speeltuin én het strand van Meerstad – is dit de ideale plek voor gezinnen die ruim willen wonen, energiezuinig willen leven én willen genieten van het vakantiegevoel dat je dagelijks in Meerstad ervaart.

Riant en licht, binnen én buiten
Dankzij de uitbouw van 2,40 meter en grote raampartijen is de leefruimte op de begane grond bijzonder licht en ruim (ca. 58 m²). Zowel de woonkamer als de luxe open keuken met kookeiland hebben een schuifpui naar de tuin, die drie terrassen telt – met altijd een plekje in de zon of schaduw. De keuken is compleet uitgevoerd met een Bora-inductieplaat met geïntegreerde afzuiging, combi-stoomoven, koelkast, vriezer, vaatwasser en veel bergruimte. Leuk detail: aan de voorzijde ligt een zonnig terras, sfeervol afgeschermd van de straat met een gemetselde plantenbak – net als bij de buren, wat zorgt voor een verzorgde en uniforme uitstraling in de straat.

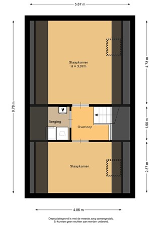
Boven zijn er vijf volwaardige slaapkamers, verdeeld over twee verdiepingen, en een moderne badkamer met inloopdouche, wastafelmeubel en tweede toilet. De hele woning is strak afgewerkt, voorzien van vloerverwarming op de begane grond en eerste verdieping, kunststof kozijnen, inbouwspots en een op maat gemaakt TV-meubel.

Toekomstbestendig en zeer energiezuinig
Met energielabel A++++, 28 zonnepanelen, een aardwarmtepomp én HR++-beglazing is deze woning volledig voorbereid op de toekomst. Je woont hier comfortabel, stil én zeer energiezuinig – verwarming én koeling zijn duurzaam geregeld en de energielasten zijn opvallend laag.

Tersluis: modern wonen aan het water
Tersluis is een jonge, populaire wijk in Meerstad, geliefd om zijn ruimtelijke opzet, het vele groen én natuurlijk het water. Vanuit deze woning wandel je zo naar het speelveldje om de hoek, het Woldmeer of de supermarkt. In de zomer kun je varen met je sloep, een frisse duik nemen, watersporten of gewoon lekker genieten van de zon op het strand. De binnenstad van Groningen ligt op slechts 20 minuten fietsen en is – net als de uitvalswegen – vlot bereikbaar met de auto of het openbaar vervoer.

BELANGRIJKSTE KENMERKEN OP EEN RIJ:
• Uitgebouwde hoekwoning (2020) met 160 m² woonoppervlakte
• Vijf riante slaapkamers en moderne badkamer
• Luxe keuken met kookeiland en schuifpui naar de tuin
• Drie terrassen rondom – altijd zon of schaduw
• Onderhoudsarm: kunststof kozijnen
• Energielabel A++++: comfortabel wonen met zeer lage maandlasten
• Fraai aangelegde achter-, zij- en voortuin met berging en achterom
• Vloerverwarming op begane grond en eerste verdieping
• Gelegen in Tersluis: water- en kinderrijk!

Nieuwsgierig of dit jouw volgende thuis is? Plan een bezichtiging – we laten je graag ervaren hoe compleet, comfortabel en zorgeloos wonen aan de Vossenburglaan voelt.

Kaart

Kenmerken

Overdracht

Vraagprijs
€ 619.000,- k.k.
Status
Verkocht
Aanvaarding
In overleg
Aangeboden sinds
Maandag 30 juni 2025
Laatste wijziging
Dinsdag 15 juli 2025

Bouw

Type object
Woonhuis, eengezinswoning, hoekwoning
Soort bouw
Bestaande bouw
Bouwperiode
2020
Dakbedekking
Dakpannen
Type dak
Dwarskap
Keurmerken
Energie prestatie advies
Isolatievormen
Dakisolatie
Dubbel glas
HR-glas
Muurisolatie
Vloerisolatie
Volledig geïsoleerd

Oppervlaktes en inhoud

Perceeloppervlakte
258 m²
Woonoppervlakte
160 m²
Inhoud
586 m³
Oppervlakte externe bergruimte
8 m²
Oppervlakte gebouwgebonden buitenruimte
1 m²

Indeling

Aantal bouwlagen
3
Aantal kamers
6 (waarvan 5 slaapkamers)
Aantal badkamers
1 (en 1 apart toilet)

Locatie

Ligging
In woonwijk
Vrij uitzicht

Tuin

Type
Achtertuin
Hoofdtuin
Ja
Oriëntering
Noorden
Heeft een achterom
Ja
Staat
Prachtig aangelegd
Tuin 2 - Type
Voortuin
Tuin 2 - Oriëntering
Zuiden
Tuin 2 - Staat
Prachtig aangelegd
Tuin 3 - Type
Zijtuin
Tuin 3 - Oriëntering
West
Tuin 3 - Staat
Prachtig aangelegd

Energieverbruik

Energielabel
A++++

Uitrusting

Warm water
Aardwarmte
Verwarmingssysteem
Aardwarmte
Elektrische verwarming
Vloerverwarming (gedeeltelijk)
Warmtepomp
Ventilatie methode
Balansventilatie
Keukenvoorzieningen
Inbouwapparatuur
Kookeiland
Badkamervoorzieningen
Inloopdouche
Toilet
Vloerverwarming
Wastafel
Wastafelmeubel
Glasvezelaansluiting aanwezig
Ja
Tuin aanwezig
Ja
Heeft schuur/berging
Ja
Heeft een dakraam
Ja
Heeft een schuifpui
Ja
Heeft zonnepanelen
Ja

Kadastrale gegevens

Kadastrale aanduiding
Groningen AE 1725
Perceeloppervlakte
258 m²
Omvang
Geheel perceel
Eigendomsituatie
Eigen grond

Brochure(s) en overige bijlagen

Vossenburglaan 220, 9613 CG MEERSTAD (2) Download