Verkocht onder voorbehoud:De Vosholen 58, 9611 KS Sappemeer - Foto
Verkocht onder voorbehoud
+88

De Vosholen 58 9611 KS Sappemeer € 425.000,- k.k.

  • Woonhuis
  • 4 kamers
  • 3 slaapkamers
  • 1 badkamer
  • Bouwjaar 1930
  • 1.096 m² perceeloppervlakte
  • 174 m² gebruiksoppervlakte
  • B Energielabel B

Beschrijving

Aan De Vosholen 58 woon je op een plek met rust, ruimte en karakter.
Deze ruime woning van 174 m² ligt op een royaal perceel van maar liefst 1.096 m² en biedt volop mogelijkheden om het helemaal naar je eigen hand te zetten. Hier woon je vrij, met zicht op je eigen groen en alle ruimte om binnen én buiten je eigen plek te creëren.

Via de entree kom je in de hal, waar zich het toilet bevindt en de trap naar de eerste verdieping. De woonkamer is ruim en licht en heeft een prettige L-vorm van circa 42 m². Dankzij de indeling kun je hier eenvoudig een comfortabele zit- en eethoek creëren. Aan de voorzijde kijk je vrij uit over je eigen voortuin, wat zorgt voor een open en ruimtelijk gevoel.
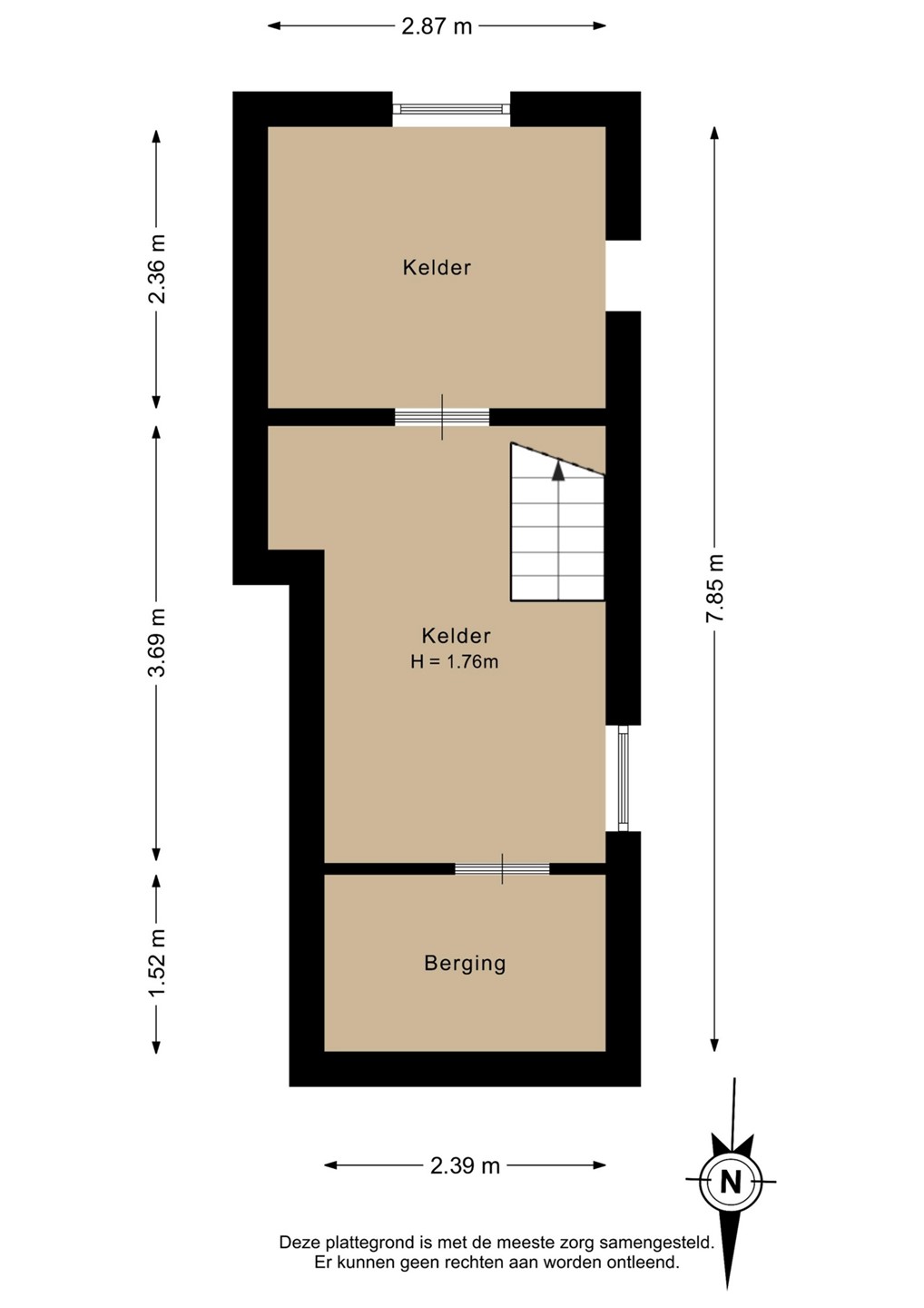
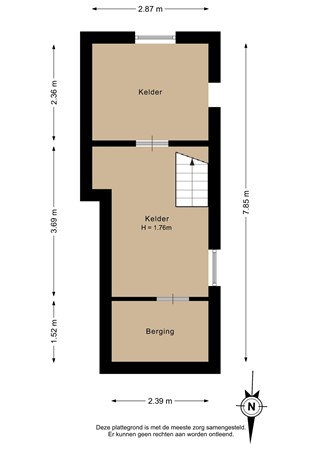
Vanuit de woonkamer heb je ook toegang tot de kelder, een buitengewoon ruime en praktische ruimte die bestaat uit meerdere compartimenten en ideaal is voor opslag, provisie of hobby.
De keuken van ca. 20 m² is opvallend ruim. Hier is volop plek om een echte woonkeuken te realiseren waar je met elkaar kunt koken én eten.
Vanuit de woonkamer bereik je een serrekamer die voor verschillende doeleinden gebruikt kan worden. Het is een bijzondere ruimte met veel glas rondom en schuifdeuren naar zowel de woonkamer als naar buiten. Hier ervaar je een sterke verbinding met de tuin en het buitenleven, terwijl je binnen zit. Het gebruik als bijvoorbeeld werkkamer, muziekkamer of een speelkamer is hier goed voor te stellen.
Aansluitend kom je in de bijkeuken, waar de aansluitingen voor wasmachine aanwezig zijn en waar je eenvoudig een praktische was- of bergruimte van kunt maken. Boven de bijkeuken bevindt zich nog een vliering. Vanuit de bijkeuken heb je directe toegang tot de garage. Deze is daarnaast ook van buiten bereikbaar via een aparte deur en voorzien van een elektrische overheaddeur.

Op de eerste verdieping vind je twee ruime slaapkamers van ca. 10 en 11 m², beide met inbouwkasten. Eén van de slaapkamers beschikt over een schuifpui naar het platte dak, wat zorgt voor extra lichtinval. De badkamer is royaal en voorzien van een ligbad, douche, wastafelmeubel en een tweede toilet.

De tweede verdieping is bereikbaar via een vaste trap en bestaat uit een grote open ruimte. Hier kun je, afhankelijk van je wensen, eenvoudig één of twee extra slaapkamers, een werkruimte of hobbyruimte realiseren.

De tuin is royaal en groen opgezet en biedt volop ruimte om te genieten van het buitenleven. Verspreid over het perceel staan volwassen bomen en er zijn meerdere plekken om te zitten, waardoor je hier op elk moment van de dag een fijne plek kunt vinden. Zowel aan de voorzijde, zijkant en achterzijde van het huis zijn fijne terrassen met voldoende privacy.
Parkeren kan ruim op de eigen oprit en daarnaast biedt de garage ook plek voor een auto.

De ligging is rustig en groen, met een vrij gevoel en een landelijke sfeer. Aan de andere kant van het Borgercompagniesterdiep ligt Veenborg Welgelegen en aan de achterkant ligt de bosrijke omgeving van Nieuw Woelwijck.
Het centrum van Hoogezand met winkelcentrum De Hooge Meeren ligt op korte afstand, net als voorzieningen zoals scholen, sportfaciliteiten en uitvalswegen richting Groningen. Zo combineer je hier ruimte en rust met het gemak van alles dichtbij.

Deze woning biedt een mooie basis met karakter en volop mogelijkheden om er jouw eigen stek van te maken.
Zie jij jezelf hier al wonen? Plan dan een bezichtiging bij STEK Jouw makelaar! en ervaar zelf de ruimte en mogelijkheden van De Vosholen 58.

BELANGRIJKSTE KENMERKEN OP EEN RIJ
• Ruime woning met 174 m² woonoppervlak
• Energielabel B en voorzien van 16 zonnepanelen en kunststof kozijnen
• Gelegen op een ruim perceel van ca. 1.100 m²
• L-vormige woonkamer met prachtig zicht rondom
• Ruime keuken van ca. 20 m² te gebruiken als woonkeuken
• Extra kamer met veel glas en directe verbinding met buiten
• Twee slaapkamers en de mogelijkheid om extra kamers op zolder te creëren.
• Grote kelder met meerdere ruimtes
• Garage met elektrische deur
• Ruime parkeergelegenheid op eigen terrein

Kaart

Kenmerken

Overdracht

Referentienummer
VK80
Vraagprijs
€ 425.000,- k.k.
Status
Verkocht onder voorbehoud
Aanvaarding
In overleg
Aangeboden sinds
Donderdag 2 april 2026
Laatste wijziging
Dinsdag 19 mei 2026

Bouw

Type object
Woonhuis, eengezinswoning, geschakelde woning
Soort bouw
Bestaande bouw
Bouwperiode
1930
Dakbedekking
Bitumen
Dakpannen
Type dak
Zadeldak
Keurmerken
Energie prestatie advies
Isolatievormen
Dakisolatie
Dubbel glas
HR-glas
Muurisolatie

Oppervlaktes en inhoud

Perceeloppervlakte
1.096 m²
Woonoppervlakte
174 m²
Inhoud
832 m³
Oppervlakte overige inpandige ruimten
42 m²
Oppervlakte gebouwgebonden buitenruimte
2 m²

Indeling

Aantal bouwlagen
3 (en 1 kelder)
Aantal kamers
4 (waarvan 3 slaapkamers)
Aantal badkamers
1 (en 1 apart toilet)

Locatie

Ligging
In bosrijke omgeving
Vrij uitzicht

Tuin

Type
Achtertuin
Oriëntering
Zuiden
Staat
Normaal
Tuin 2 - Type
Voortuin
Tuin 2 - Oriëntering
Noorden
Tuin 2 - Staat
Normaal
Tuin 3 - Type
Zijtuin
Tuin 3 - Oriëntering
Oosten
Tuin 3 - Staat
Normaal

Energieverbruik

Energielabel
B

CV ketel

CV ketel
Remeha
Warmtebron
Gas
Bouwjaar
2020
Combiketel
Ja
Eigendom
Eigendom

Uitrusting

Aantal parkeerplaatsen
3
Aantal overdekte parkeerplaatsen
1
Warm water
CV-ketel
Verwarmingssysteem
Centrale verwarming
Gashaard
Parkeergelegenheid
Aangebouwde stenen garage
Heeft een rookkanaal
Ja
Tuin aanwezig
Ja
Heeft een garage
Ja
Beschikt over een internetverbinding
Ja
Heeft een dakraam
Ja
Heeft een schuifpui
Ja
Heeft zonnepanelen
Ja

Kadastrale gegevens

Kadastrale aanduiding
Sappemeer H 970
Perceeloppervlakte
34 m²
Omvang
Geheel perceel
Eigendomsituatie
Eigen grond
Kadastrale aanduiding
Sappemeer H 972
Perceeloppervlakte
155 m²
Omvang
Geheel perceel
Eigendomsituatie
Eigen grond
Kadastrale aanduiding
Sappemeer H 922
Perceeloppervlakte
12 m²
Omvang
Geheel perceel
Eigendomsituatie
Eigen grond
Kadastrale aanduiding
Sappemeer H 969
Perceeloppervlakte
895 m²
Omvang
Geheel perceel
Eigendomsituatie
Eigen grond

Brochure(s) en overige bijlagen

Brochure AV - De Vosholen 58 - Sappemeer.pdf Download